Área do Cliente
|
Acesse pelo celular

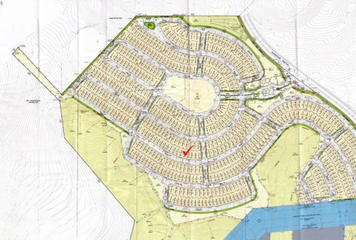
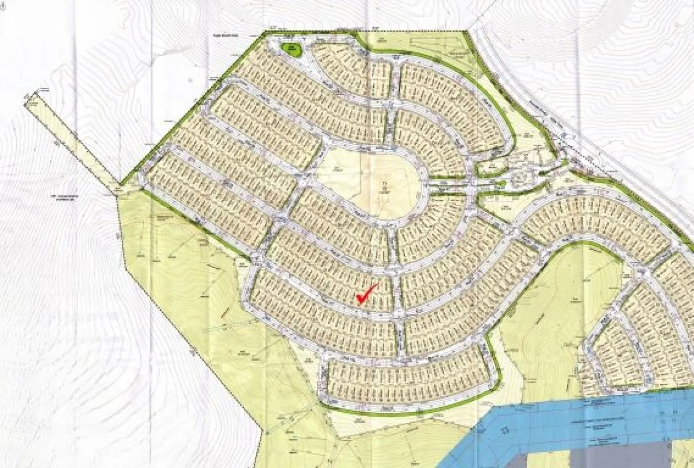
Terreno - Condomínio Terras Alpha Urbanova ? 348m² em São José dos Campos - SP

Terreno Condomínio - Urbanova Residencial para Venda em São José dos Campos

|
Compartilhe:
Total para Acessórios valores sujeitos a alteração.

Condomínio
550,00

IPTU
30,00
Total para Acessórios valores sujeitos a alteração.

Venda

(ITBI, Registro, Escritura e Certidões)
Consulte-nos
Residencial
Finalidade
104
Referência
348.00 m²
A. Terreno
Descrição do Imóvel

Terreno - Condomínio Terras Alpha Urbanova ? 348m² em São José dos Campos - SP

Esse terreno está localizado no Condomínio Terras Alpha Urbanova, possui fácil acesso às principais vias da cidade.

Conheça as características deste terreno:

- Área do Terreno com 348m²
- Leve aclive
- Localização privilegiada dentro do condomínio
- Lazer completo

Diferenciais Exclusivos:
- Muro pronto em um dos lados
- Localização privilegiada
- Terreno liberado para construção
- Portaria 24hs

Lazer no Condomínio:

- Academia com assessoria esportiva da companhia atlética
- Bicicletas compartilhadas
- Churrasqueira
- Espaço gourmet
- Espaço pet
- Piscina
- Pista de caminhada
- Quadra de tênis
- Quadra poliesportiva
- Salão de festas
- Salão de jogos.

Que tal agendar uma visita e conhecer este imóvel hoje mesmo?

Também temos imóveis no Jardim das Colinas, Urbanova, Vila Ema, Vila Adyanna, Jardim São Dimas, Jardim das Indústrias, Jardim Alvorada, Royal Park, Parque Residencial Aquarius, Chácara Serimbura, Altos da Serra, Jardim do Golfe, Alphaville, Residencial Mônaco, Residencial Monte Carlo, Floradas do Paratehy, Reserva do Paratehy, Sunset Park, Bosque Imperial, Jardim Apolo, Jardim Altos do Esplanada, Recanto da Serra, Eldorado, Moradas da Serra, Mont Serrat, Chácaras do Parayba, Altos da Serra Vl, Pontal da Serra, Portal da Serra, Residencial Jaguary, Piaget, Vernazza, Paesaggio, Pátio Condomínio Club, Esplanada Life, L`essence Jardim Aquarius, Central Park, Grand Club Vila Ema, Abruzzo, Privilege, Premiere Jardim Aquarius, Open View Aquarius entre outros da região.

Itens do Imóvel

Muro

Simule um Financiamento

Total para Acessórios valores sujeitos a alteração.


Condomínio
550,00

IPTU
30,00

Total / Mês
580,00



Venda

(ITBI, Registro, Escritura e Certidões)
Consulte-nos

Total
618.000,00

DÚVIDAS SOBRE O IMÓVEL
PREENCHA O FORMULÁRIO


Concordo com os Termos e Privacidade
Imóveis Similares