Área do Cliente
|
Acesse pelo celular

Galpão Industrial com 56.620m² - SJCampos

Comercial Galpão - Ronda Comercial para Locação em São José dos Campos

|
Compartilhe:

DISPONÍVEL

Imóvel disponível. Contate-nos pessoalmente para visita-lo


Aluguel

IPTU
41.885,00
Comercial
Finalidade
721
Referência
10
Banheiros
10
Garagens
27387.00 m²
A. Construída
Descrição do Imóvel

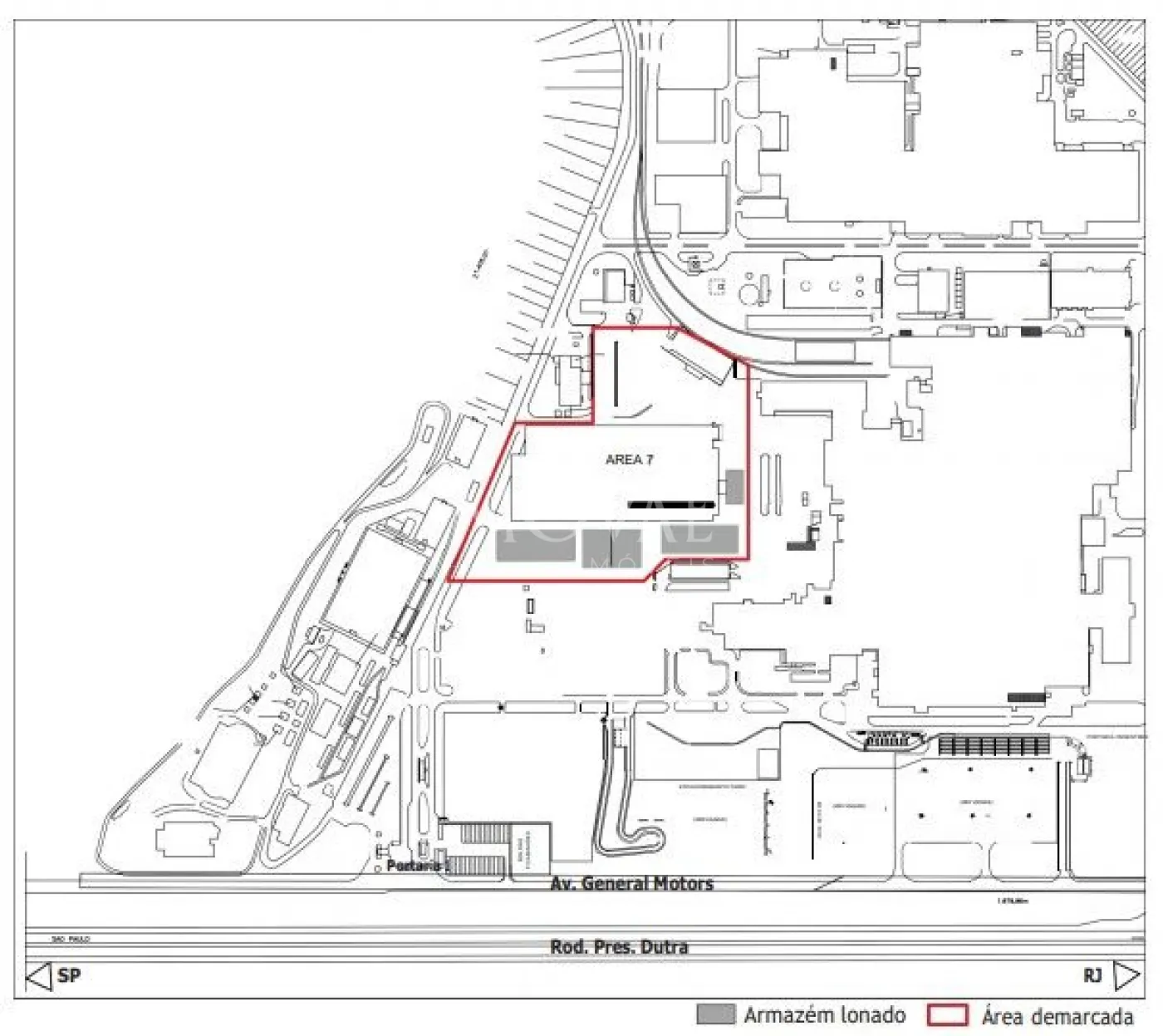
Galpão Industrial com 56.620m² de terreno e 27.387m² de área construída, de frente para a Rodovia Presidente Dutra.

Armazém
Área administrativa
Pé-direito de 5 a 8 m
Estacionamento
Pátio de manobras
Vias de circulação interna
Sistema de combate contra incêndio
Guarita
Vestiário
Banheiros

Venha realizar uma visita!

Itens do Imóvel

Cozinha
Escritório
Lavabo
Mezanino
Recepção

DISPONÍVEL

Imóvel disponível. Contate-nos pessoalmente para visita-lo



Aluguel

IPTU
41.885,00

Total / Mês
481.885,00

DÚVIDAS SOBRE O IMÓVEL
PREENCHA O FORMULÁRIO


Concordo com os Termos e Privacidade